| 收藏本站
餐饮家具定制厂家

餐厅家具定制品牌 15年餐桌餐椅定制服务

餐饮家具餐桌椅定制热线:135-4415-7309
 产品分类导航: 火锅桌椅    烤肉桌    西餐厅家具    会所家具    酒吧家具    茶餐厅家具    不锈钢工程    电动餐桌    食堂餐桌椅    咖啡厅桌椅    中餐厅酒楼宴会桌椅    主题餐厅家具    卡座沙发    餐厅配套家具   
当前位置:主页 > 客户案例 >

你刚刚浏览过的产品

【海德利餐饮家具】北京三元桥宽店重庆火锅店案例

文章来源:海德利 作者:海德利餐饮家具 发布时间: 2017-04-25 12:54

北京三元桥宽火锅店
 
 
项目名称:北京三元桥宽店重庆火锅店案例                                            项目类别:火锅店家具
 
项目城市:北京市                                                                               工程面积:350平方米
 
服务团队:海德利餐饮家具团队
 
海德利餐饮家具长期专业致力于西餐厅家具,中餐厅家具,火锅餐厅家具,咖啡厅家具,火锅家具,茶餐厅家具,主题餐厅家具,快餐餐厅家具,酒店家具,酒吧家具等各类公共休闲餐饮家具的定制和配套解决方案。
 
北京三元桥宽火锅店餐桌椅
 
 
最简单的火锅家具,经过我们设计师的点金之手,材质的软硬结合,色调的冷暖比差,当看到设计师的图纸时,火锅店老板都表示以后火锅家具的定制就交给我们了。
 
北京三元桥宽火锅店餐桌
 
每个餐厅都会有他们不同餐饮环境需求,你不可能在一个店里买到你要的所有餐饮家具。即使你买到了,放置的效果也未必可以达到你预想那么完美。定制餐饮家具,给你打造最贴心,最完美的餐饮环境。
 
海德利北京三元桥宽火锅店工程案例实拍图
根据进店的人数进行划分,火锅家具的定制自然也要进行区分,圆形的一般适合人多的聚餐,火锅桌的设计是设置了三个可以煮火锅的位置,防止人多不够用,人性化的设计。
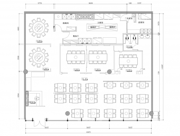
北京三元桥宽火锅店工程图纸
 
北京三元桥宽店重庆火锅店客户感言:“两年前,我自己创业,想开个一个火锅店,后来决定开始时,就是从店面装修及餐饮家具开始,火锅餐饮家具必须与装修风格一致,这一点花费了我很大的精力,在挑选餐饮家具时最终我选择了海德利餐饮家具,因为他们的家具款式多样,而且还可以根据需求定制,这让我很省心,后来火锅店开起来了,店面整体感觉很不错,生意很好,感谢海德利家具为我们提供的优质产品。”
网站导航 首页 产品展示 餐桌椅知识 企业动态 定制方案 客户案例 关于我们 联系我们 网站地图